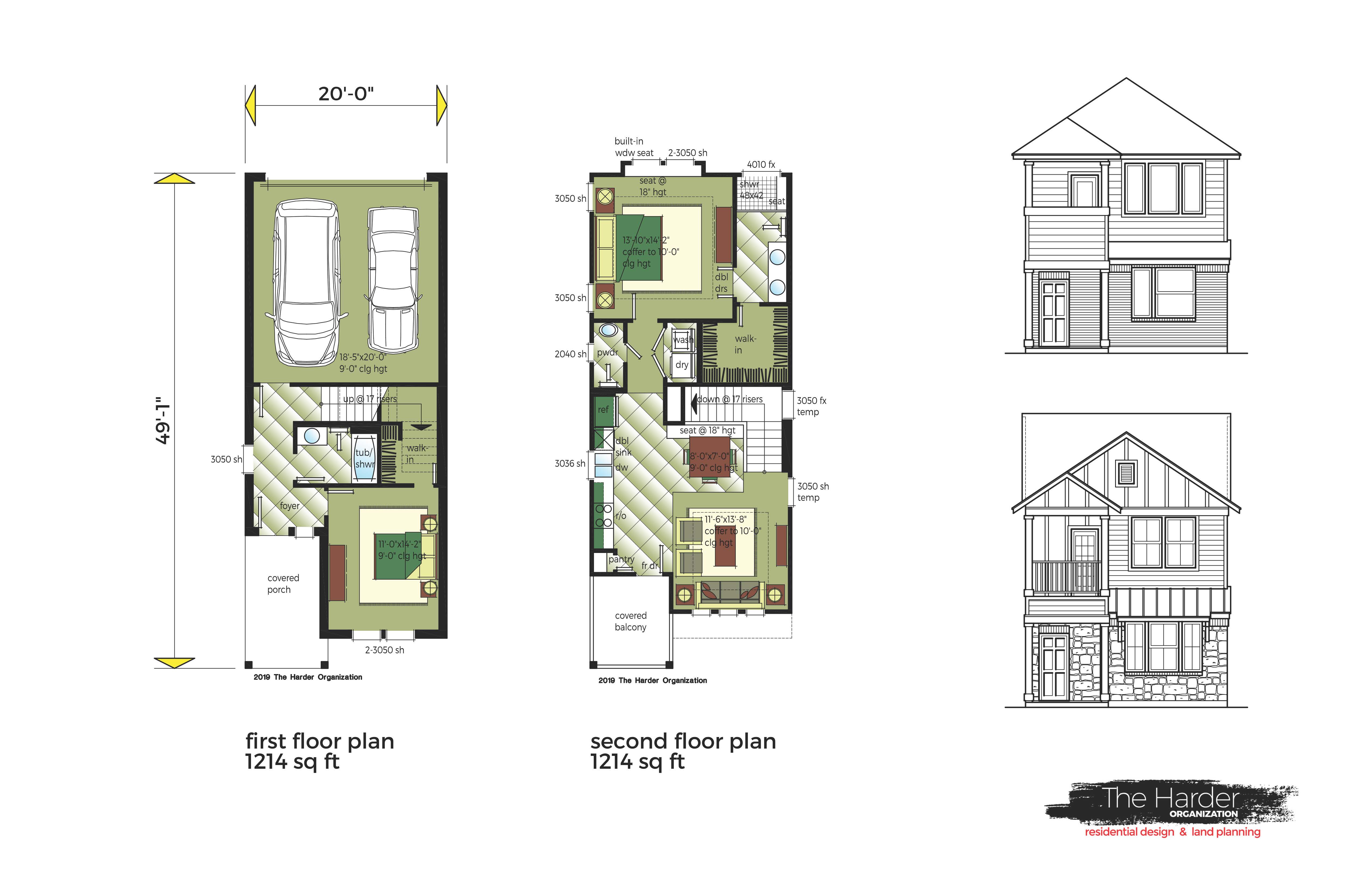
On the Drawing Board